Toggle navigation
Introduction
Selected Works
careers
Contact
Puravida Residence
Gangadhar House
INFO
EXTERIOR VIEW
INTERIOR VIEW
DRAWINGS
MODEL PHOTOS
CONSTRUCTION PHOTOS
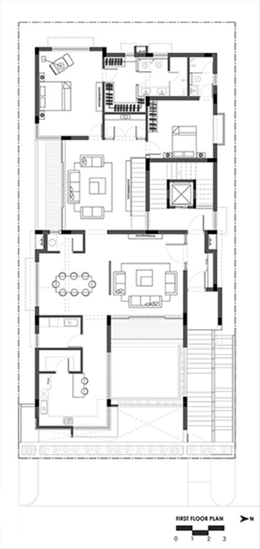
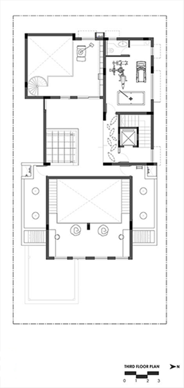
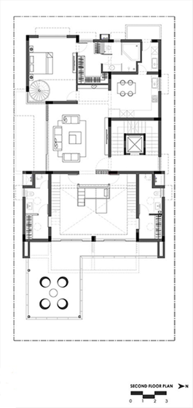
DRAWING
1
2
3
4