Toggle navigation
Introduction
Selected Works
careers
Contact
Guruprasad Residence
Sampath Residence
INFO
EXTERIOR VIEW
INTERIOR VIEW
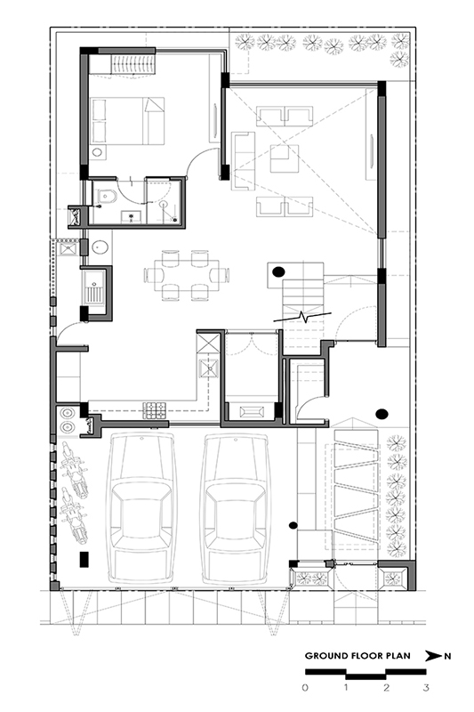
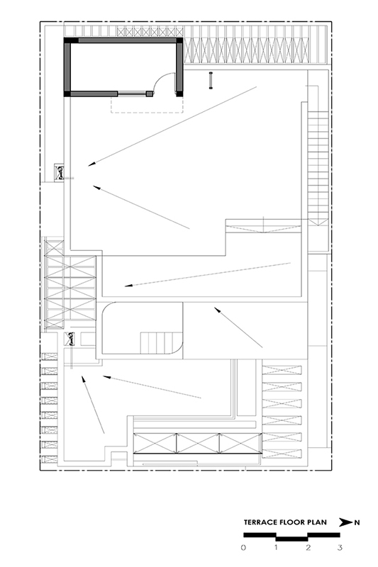
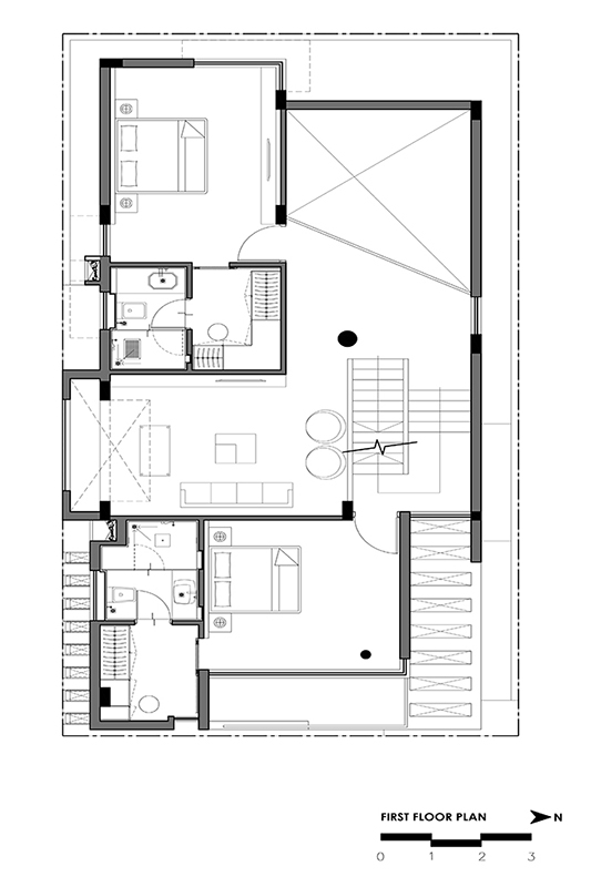
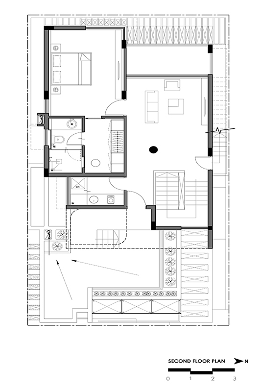
DRAWINGS
DRAWINGS
1
2
3
4