Toggle navigation
Introduction
Selected Works
careers
Contact
Praveen Farm House
Nagesh Residence
INFO
EXTERIOR VIEW
INTERIOR VIEW
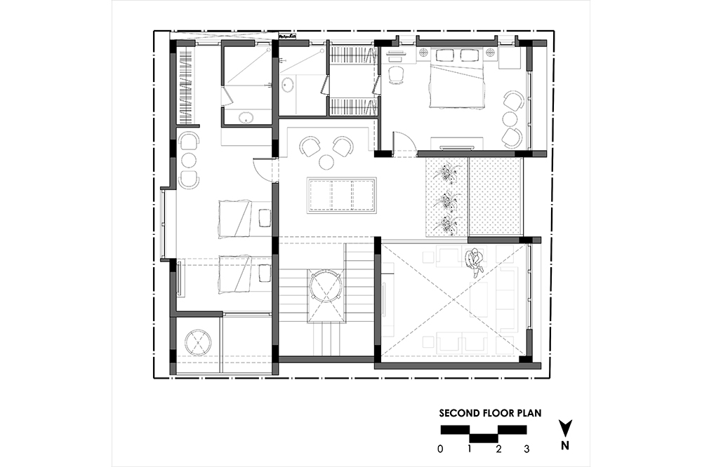
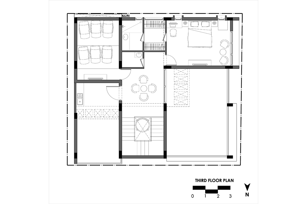
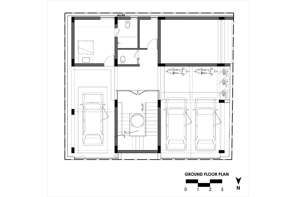
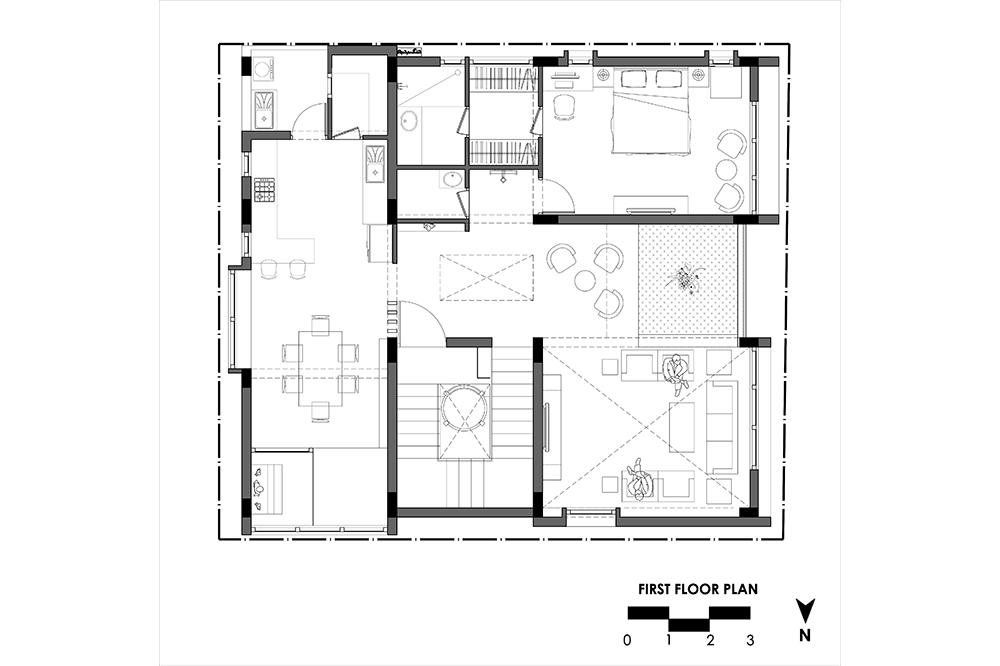
DRAWINGS
DRAWINGS
1
2
3
4
5